
Dans cet article, nous vous proposons une vue d’ensemble des éléments essentiels d’un dispositif extérieur. Ce système est conçu pour offrir une protection contre les intempéries tout en assurant une grande durabilité. Une bonne compréhension de chaque élément est cruciale pour garantir une performance optimale et prolonger sa durée de vie.
Identifier les composants clés est la première étape pour maintenir et réparer efficacement votre équipement. En connaissant la fonction et l’emplacement de chaque pièce, vous serez en mesure d’effectuer les ajustements nécessaires sans difficulté.
De plus, nous aborderons les méthodes de réparation et d’entretien qui permettent de préserver l’intégrité du dispositif. Un entretien régulier et l’utilisation de pièces de rechange appropriées sont essentiels pour un fonctionnement sans faille et une utilisation prolongée.
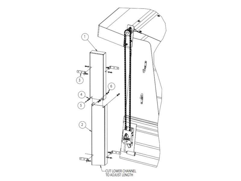
Présentation du diagramme des pièces

Pour assurer une utilisation optimale et un entretien efficace de votre dispositif, il est essentiel de connaître les différents éléments qui le composent. Ce schéma vous permet de visualiser chaque composant, facilitant ainsi les réparations et les ajustements nécessaires.
Voici les principaux composants représentés dans le schéma :
- Le mécanisme d’ouverture et de fermeture
 - Les supports et fixations pour la structure
 - Les éléments de contrôle et d’ajustement
 - Les systèmes de fixation au sol et aux murs
 
Ce schéma est un outil précieux qui vous aide à identifier rapidement les pièces en cas de besoin. En comprenant le rôle de chaque élément, vous serez mieux préparé à intervenir pour garantir le bon fonctionnement de votre installation.
Fonctionnement des composants du store

Les éléments qui composent ce système extérieur travaillent ensemble pour offrir une protection et une fonctionnalité optimales. Chaque pièce a un rôle spécifique, contribuant à l’efficacité globale de l’installation. Comprendre leur fonctionnement est essentiel pour un entretien adéquat et une utilisation prolongée.
Le mécanisme de déploiement

Le mécanisme de déploiement est responsable de l’extension et du retrait du dispositif. Il est généralement actionné manuellement ou à l’aide d’un moteur. Ce système garantit une ouverture fluide et un repliage sans accroc. Une attention particulière doit être accordée à l’entretien des bras et des ressorts qui assurent ce mouvement.
Les supports et fixations

Les supports et fixations assurent la stabilité et la sécurité de l’ensemble de la structure. Ils sont essentiels pour maintenir le dispositif fermement en place. Ces éléments doivent être vérifiés régulièrement pour éviter tout affaiblissement qui pourrait compromettre l’intégrité du système.
Chaque composant doit être bien compris et entretenu pour garantir la longévité et le bon fonctionnement du mécanisme. Un suivi régulier des pièces mobiles et fixes est indispensable pour une utilisation sans soucis.
Réparation et remplacement des pièces

La réparation et le remplacement des éléments défectueux d’un système extérieur sont des étapes cruciales pour maintenir sa fonctionnalité et sa durabilité. Avec le temps, certains composants peuvent s’user ou se détériorer, ce qui nécessite une intervention. Savoir identifier les pièces à remplacer et comprendre le processus de réparation garantit une utilisation prolongée de l’installation.
Lorsque vous devez remplacer un élément, il est important de choisir des pièces de rechange compatibles et de qualité. Certaines pièces peuvent être facilement remplacées par l’utilisateur, tandis que d’autres nécessitent des compétences techniques plus avancées. Voici quelques conseils :
- Vérifiez régulièrement l’état des composants mobiles pour détecter d’éventuels signes d’usure.
 - Assurez-vous de bien suivre les instructions lors du remplacement des pièces pour éviter des erreurs d’installation.
 - Si des pièces plus complexes sont endommagées, il est recommandé de faire appel à un professionnel pour effectuer les réparations.
 
Un entretien préventif et un remplacement opportun des éléments défectueux permettent de prolonger la durée de vie de votre installation tout en assurant son bon fonctionnement.
Conseils pour un entretien optimal

Un entretien régulier est essentiel pour garantir le bon fonctionnement et la longévité de votre installation extérieure. Prendre soin des différents composants et procéder à des vérifications régulières permet d’éviter les pannes imprévues et de maximiser la durée de vie de votre système. Voici quelques recommandations pour maintenir votre équipement en excellent état.
Vérifications régulières des éléments essentiels

Il est important de procéder à des inspections périodiques pour vérifier l’état des mécanismes mobiles et des supports. Recherchez les signes d’usure, de rouille ou de toute autre détérioration qui pourrait affecter l’efficacité du système. Un contrôle régulier vous permet de détecter les problèmes à un stade précoce, facilitant ainsi les réparations.
Nettoyage et protection des composants

Le nettoyage des différentes pièces est une étape clé dans l’entretien. Assurez-vous que les surfaces ne sont pas obstruées par de la saleté ou des débris, et appliquez des produits de protection pour prévenir l’usure prématurée causée par les intempéries. Cela permet non seulement de préserver l’apparence de votre équipement, mais aussi d’éviter la dégradation des matériaux.
En suivant ces conseils, vous pourrez profiter de votre installation en toute tranquillité, sachant qu’elle reste en bon état de fonctionnement à long terme.
Installation et ajustement du store

L’installation et l’ajustement corrects d’un système de protection extérieur sont essentiels pour garantir son efficacité et sa longévité. Un montage précis assure non seulement un fonctionnement optimal, mais prévient également des problèmes futurs. Ce processus inclut plusieurs étapes importantes, dont la fixation, l’alignement et les tests finaux pour vérifier la stabilité et la fonctionnalité du dispositif.
Voici un guide étape par étape pour une installation réussie :
| Étape | Description | 
|---|---|
| Préparation | Assurez-vous d’avoir tous les outils nécessaires et vérifiez les composants avant l’installation. | 
| Fixation des supports | Fixez solidement les supports à la structure du bâtiment, en vous assurant qu’ils sont bien nivelés. | 
| Montage du mécanisme | Installez le mécanisme de déploiement en suivant les instructions, en vous assurant qu’il est bien ajusté. | 
| Ajustement final | Testez le fonctionnement de l’installation, ajustez la tension si nécessaire pour assurer une ouverture et fermeture fluides. | 
Une fois l’installation terminée, il est crucial de tester le système pour vérifier son bon fonctionnement et effectuer les ajustements nécessaires. En suivant ces étapes, vous vous assurerez que votre dispositif est installé correctement et prêt à l’emploi.